Brescia

IL PROGETTO

In una zona residenziale tranquilla e ben collegata, è appena iniziato un nuovo cantiere che prevede la realizzazione di un progetto esclusivo, pensato per chi cerca comfort, qualità e una zona strategica per essere collegati alla città ma non rinunciando alla tranquillità.

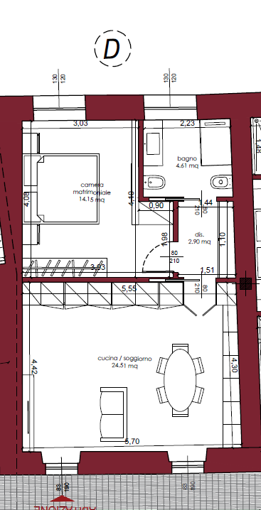
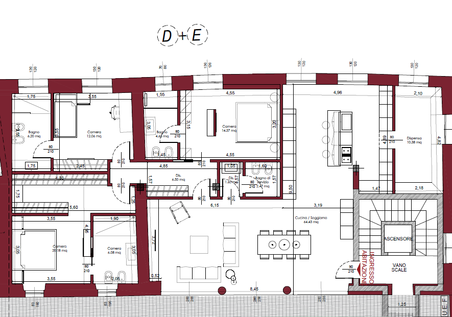
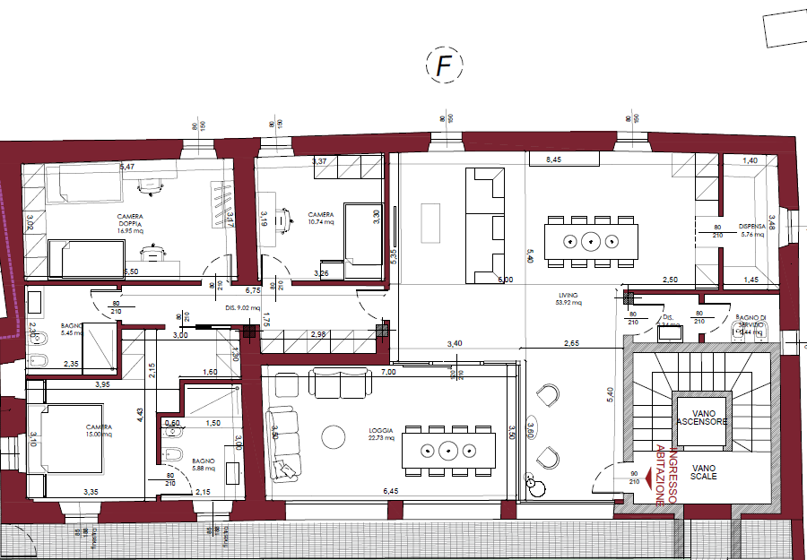
Il progetto comprende la ristrutturazione completa di un edificio esistente, dove sorgeranno sei unità abitative, sviluppate in soluzioni trilocali e quadrilocali, completamente rinnovati con materiali moderni e finiture di pregio.

Ogni appartamento sarà curato nei minimi dettagli e offrirà ambienti luminosi, spazi ben distribuiti e finiture di alto livello, con la possibilità di intervenire sulla scelta dei materiali e sulla distribuzione interna.

Accanto all’edificio ristrutturato verrà realizzata una nuova costruzione: una bifamiliare di pregio, composta da due appartamenti indipendenti disposti su due livelli.

Entrambe le unità saranno dotate di piscina privata, garage interrato collegato direttamente alla casa e ampie zone giorno, studiate per garantire privacy e massimo comfort abitativo.

Le abitazioni saranno costruite secondo le più recenti normative in materia di risparmio energetico e sostenibilità, con impianti moderni e prestazioni elevate.

L’intervento è ideale sia per famiglie che cercano una soluzione definitiva, sia per chi desidera investire in un immobile di qualità in una zona in forte sviluppo.

Acquistando in questa fase iniziale, è possibile personalizzare gli spazi e scegliere finiture su misura, approfittando di condizioni vantaggiose.

Per maggiori informazioni, planimetrie o visite in cantiere, contattaci direttamente.

Siamo a disposizione per accompagnarti nella scelta della tua nuova casa.

POSSIBILITA’ DI RECUPERO FISCALE PER BONUS EDILIZI

 

TIMELINE AVANZAMENTO LAVORI

Inizio cantiere
AGOSTO 2025
Fondamenta
Soletta
Tetto
Impianti
Finiture interni
Fine cantiere
PRIMAVERA 2027